Residential
Supovitz Loft
Firm: Merge Architects Inc.
Role: Lead designer/ Project Manager
Location: Philadelphia, USA
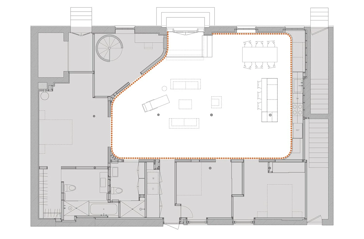
Supovitz Loft was once a highly compartmentalized office space. After a major demolition, only the exterior walls and metal columns remained, allowing for a complete transformation into a residential space. The new design revolves around a spacious central gathering area where the kitchen, living, and dining spaces seamlessly merge into one communal space.
A curved wall gently embraces this central hub and organizes the private spaces around it. By eliminating traditional corridors, the design maximizes openness and fluidity in the living area. Access to the office, bedrooms, and bathrooms is provided through translucent pocket doors directly from the living.
The open kitchen features custom-made OSB cabinetry. The concrete countertops extend into a built-in bench at the dining area reinforcing the fluidity between zones.